Editorial

Hot spots

The more you know about something, the less inclined you are to hold definite and unequivocal views on that subject. At any rate, 
after two-and-a-half years of A10, I find it increasingly difficult to give a categorical reply to the question of where the current hot spot of European architecture is located. Nor do I find it easy to nominate „the place to be“ for European architects in the near 
future, although I am still willing to bet that Central Europe will figure prominently in the years to come.

The fact is, that for me as editor of A10, and probably also for regular readers, the magazine’s contents lead to the inescapable conclusion that equally good architects are working all over Europe, producing equally interesting projects and concepts (at best one might disagree about the intrinsic appeal of contemporary architecture). And even though differing economic and cultural conditions mean that the chance of such architecture actually getting built is not everywhere the same, it would be difficult to deny that interesting projects are seeing the light of day all over Europe.
Of course, even today it is still possible to point to some countries and regions – Portugal, Slovenia, Ireland, Austria and the Czech Republic all come to mind – that attract and merit an above-average amount of interest, but none of these countries acts as an epicentre of contemporary development as Barcelona did around 1990, or Switzerland in the heyday of the Swiss box, or the Netherlands at the end of the previous decade. In contrast to a few years back, there is now no country or city in Europe that pre-dominates in all the professional journals, not a single „must see“ that appears on every architect’s travel itinerary. And to the extent that such destinations do exist, they are more likely to be found outside Europe, with China and Dubai the most obvious candidates at the present moment.
The picture A10 paints, of a Europe where interesting architecture is being built all over the place, is not in itself false, but it is only part of the bigger picture. The magazine’s set-up, with every two months a wide geographical distribution in plans and structures, suggests a qualitative homogeneity.

Even a country that is not particularly active on the architectural front, usually manages to produce five or so projects a year that are worthy of publication, and those five may ensure that the country concerned is nearly always present in A10; conversely, this same editorial policy of distribution prevents countries with a rich architectural production, such as Austria or Spain to name but two, from dominating the pages with more than ten or twelve projects in a single year. Hans Ibelings

Inhalt

On the Spot
News and observations
• Santiago Calatrava's Guillemins TGV station in Liège (BE)
• Monopoly-inspired kiosks appear in Madrid (ES)
• Rotor's recycled office in Brussels (BE)
• Update: Scotland
• Colourful student rooms at Krabbesholm Art College (DK)
• Reality check: Centra Nams in Riga (LV)
and more...

Start
New projects
• Silis, Zabers & Klava challenge the traditional image of a theatre in their design of a concert hall in Riga (LV)
• The results of the Proyecto VIVA housing competition in Spain shows that young architects search for innovation via strategic rather than formal processes
• Projektil has designed two very different but equally iconic libraries in Prague and Hradec Králové (CZ)
• Tadeusz Kantor's Art Documentation Centre, alias „Cricoteka“, by Wizja and nsMoonStudio „clashes“ with Cracow's old architecture (PL)
• Marios Economides and Maria Akkelidou won the competition for the Cavo Greco information centre (CY)
• Ski manufacturer Rossignol's headquarters in the French Alps by Hérault & Arnod pays homage to the mountains, but also to technology

Interview
Paul Kahlfeldt
Berlin-based architect Paul Kahlfeldt explains why all architecture is basically the same ever since it has been known that loads are transferred vertically towards the centre of the earth: „That is why the column is a central element in construction“

Ready
New buildings
• Dorte Mandrup Architects evoke warm feelings with a cool sports and culture centre in Copenhagen (DK)
• Raumzeit have given space, colour and a sense of luxury to a youth hostel in Bremen (DE)
• In Tallinn (EE), KOKO architects have placed a glass box on top of the Fahle building, symbolizing its conversion from paper to lifestyle factory
• No w here architects' cathedral choir school in Stuttgart (DE) is not spectacular, but certainly unconventional
• On Malta, Architecture Project has turned a garden into a spectacular outdoor living room
• In Dromahair (IE), Dominic Stevens has realized his ambition for building a house that would literally become part of the Irish landscape
• ZOOM's unorthodox apartment building in Sofia (BU) had to weather a few local storms before being accepted
• Despite its makeshift appearance, MARC's sports club boathouse on Lake Como (IE) was built to endure
• In Joensuu (FI), Lahdelma & Mahlamþki designed a pavilion-like primary school with a „windmill“ plan
• The undulating balconies of RVDM's Glicinias housing in Aveiro (PT) prompt Pedro Gadanho to reflect on how taste changes
• „A case of cannibalism in architecture“ is what EM2N architect Daniel Niggli calls his conversion of the Stadthof 11 in Zurich-Oerlikon (CH) into a theatre for musicals
• Fast, cheap, non-aesthetic: Catalin Berescu's emergency housing in Dorohoi (RO) is miles away from contemporary fashionable experiments

Section
Climate control
The connection between climate and building has undergone a paradoxical evolution. Whereas houses used to provide their occupants protection from the climate, they must now protect the changing climate from human beings.

Matter
Materia's view on the latest materials
Materials that are light-permeable are usually called „transparent“ or „translucent“, although it might be more accurate to call them „diaphanous“ - of such fine texture as to allow light to pass through; translucent or transparent (from dia-, „through“ + phainen, „to show, to appear“). It is related to „phantom“, something apparently sensed but having no physical reality.

Eurovision
Focusing on European countries, cities and regions
• Over the last few years a trend has been emerging in Dutch architecture that could perhaps be categorized as „unspectacular“. After the visual frenzy of supermodernism and neo-traditionalism, this looks like a choice for the middle of the road. The opposite is true: it signifies a deliberate reticence
• An architectural tour guide of Brno's boxes and anti-boxes (CZ)
• Home: Ilja Skocek's apartment, Bratislava (SK)

Out of obscurity
Buildings from the margins of modern history
Oliver Elser takes a closer look at Gert Hänska's monstrous Research Facility for Experimental Medicine, established with the best of intentions and set down in an almost idyllic landscape location in Berlin (DE)

House, Dromahair

Dominic Stevens has realized his ambition for building a house that would literally become part of the Irish landscape.

Sitting in the middle of a richly textured, marshy field in Co. Leitrim, just outside the town of Dromahair, this house in fact literally evolved from the ground up. Designed and built as part of research undertaken under the auspices of the Arts Council / Office of Public Works Kevin Kieran Award 2005-07, it is a house of two parts – a cast-concrete, part-buried series of sleeping, working and washing chambers below ground, and a glass-clad, open-plan living space on top. The glass room is a pavilion in the round, and a loose, informal rock-road brings you to the house and down into the landscape, the grass allowed to grow up to, around and under the house itself. The glass room tilts out and up in varying ways, so the ground but not the sky is reflected. In some lights and locations, the form disappears. The house dissolves and recedes back into the landscape, in a dynamic and delicate way, shifting minute by minute, depending on the light, the rain, the time of day. Season by season too, the landscape itself will change, lush lime meadows becoming bare, copper-gold bark and marsh, adding another vein of richness to the life of this house. You can see right through the house, the landscape uninterrupted by its presence. It develops a rhythm with the landscape and the climatic environment, and enables the occupants to connect with their surroundings in a direct, meaningful way. Furthermore, the site will retain its practical, life-supporting role, providing fuel and food into the future for its occupants.

Curiously, the house looks new and old at the same time, settling itself further into the landscape. It is made of glass, yes, and the form is clearly new, but the reflections dematerialize the glass, and as glass does not weather or age, it could reasonably have been on this site for some time already. The lower chambers are clad in larch, rough cut, rough sawn, greying and ageing elegantly into the ground. The tilted, planted roof is happily growing a little wild in places. The main entrance to the house is under the glass room, cut down and stepped into the ground, and the retaining wall to one side there is made of old, recycled car tyres, reinforced with rods and concrete where needed. Architecturally, Stevens’ constructional detailing is direct and honest, exploiting modern materials such as the glass where required, but simplifying and reinventing the method by which the glass is attached to the timber stud structure that supports it. It has been carefully and economically made by the hands of local men and looks it. Within contemporary architecture, too often concerned with an image-driven, super-human, systematic perfection, this is both courageous and refreshing.

Stevens appears to enjoy the detailing that emerges from the pragmatic requirements of construction on site; he enjoys what happens on the ground. It is an open-minded process, a way of thinking about building that is accepting of individual spirit, circumstance or suggestion. This open-minded process supports an open-ended architecture, an architecture that is accepting of individual spirit, occupation and inhabitation. The open-plan main room is large and potentially flexible, changeable and re-useable, over time, as times change, with key services and utilities grouped in movable boxes. The ground-based rooms offer privacy and security, and individual virtual and physical connections and views to the world when needed, at work or at rest. The upper room is an extraordinary venue for the theatre of public and private domestic life. The landscape that permeates and is filtered through this open house is like an energetic supporting cast member to the drama unfolding, rather than a passively observed two-dimensional backdrop. The house is designed for the dual life of the occupants, part urban, part rural, a common contemporary scenario. The house though, seems intensely and enthusias­tically occupied and full of life, as changing and diverse as the surrounding landscape, but a home supported and stabilized by it. It is a home made for, as Stevens himself writes, „those instants when this process of dwelling, suddenly coalesces into something more perfect than reality can ever hope to be, a tiny shard of utopia“. It is also – consistent with Stevens’ own thesis to make architecture affordable to all – a house built for the same cost as a typical one-off Irish bungalow.

A10, Sa., 2007.03.31

31. März 2007 Emmett Scanlon



verknüpfte Bauwerke
Mimetic House

Apartment building

KOKO architects have placed a glass box on top of the Fahle building, symbolizing its conversion from paper to lifestyle factory.

The Fahle building, a former paper factory named after its onetime owner, is perched on one of the highest points in Tallinn, right at the gates to the city, on the main road to the airport. It has become the city’s first large-scale example of industrial rebirth, with lofts, restaur­ants, clubs and now, towering over all this, a new glass box with apartments. More than anything else, it is symptomatic of the current frantic building boom in Tallinn, of the rampant daring of developers, of attempts by real-estate sharks to capture market trends and to sell the kudos and added value of an entire living environment.

The Fahle factory has become a significant setting in the development of modern Estonian architecture. Six years ago, a group of young architects organized a brainstorming session here. They wanted the abandoned factory, with its mysterious corners, industrial mega-space and countless corridors, to become Tallinn’s very own Culture Factory: a 24/7 city-like venue for living, creating and consuming, a place where you can forget that, somewhere, boring suburbs and supermarkets still exist. All sorts of studios and galleries were supposed to take up residence in the complex; both the Estonian Academy of Arts and the best avant-garde theatre wanted to move in, feeding on the synergy generated by co-existence and popular industrial romance. They saw culture in terms of post-capitalism versus industry, the pillar of „old“ capitalism.
But the dream of synergy and spectacle was not to be. Today, none of the original candidates has moved into the paper factory on the hill. Nevertheless, at least one good art gallery has set up shop behind the limestone walls, and a tele­vision station has settled, as yet somewhat shakily, beneath its chimney. A posh lighting shop opened in the building opposite and at anonther place in the labyrinthic complex you can play badminton or lie under a fake sun.
Reconstructed according to a design by KOKO architects, the Fahle building, with its restaurant floor, offices and choice of apartments, is in fact the first step in the reinvigoration of the area. Architecturally, the objective is clear: to emphasize the imposing factory building on top of the tall hill by adding a new layer to this landmark, a fashion statement in the form of a sexy glass building overlooking the city. The 14-storey structure does not try to blend in or to hide its modern appearance. It is a fitting apotheosis for what was, until recently, a heap of crumbling limestone walls.

In the United States, this phenomenon of revamped industrial buildings began some decades ago, when the new middle-class became tired of suburban life and started to move back to the city centres. The rebirth of former industrial areas was an important part of revitalizing city life by repopulating the city. „Loft living“ became the new lifestyle for the emerging, fashion-conscious generation and a successful real-estate product. So successful that there is now a shortage of factory buildings suitable for conversion and developers have taken to building brand new loft buildings.

The story conjured up in that cold cavernous paper factory on the hill six years ago, the story of culture as symbol and the new motor for urban renewal, was a retelling of NYC’s 1960s SoHo – a rundown, low-rent area populated by artists and small businesses. In the next two decades, as the old industrial buildings became successful development projects, the „authentic“ bohemian atmosphere began to be „packaged“ into luxury studio apartments – a lifestyle product for the wealthy. Of course, in the process, the original inhabitants of the area were banished.

In Tallinn, in the absurdity of the Soviet period, the authorities kept factories working in the city centre (land did not cost a thing back then and the planned economy ruled) and built „official“ lofts for artists in the grey concrete-slab suburbs. Studio and factory apartments, eye-catching architectural solutions and city living as sales strategy, have only now infiltrated the vocabulary of local real-estate developers. Yet the best views in the glass apartment box cost 3500 euros a square metre (there are only few apartments still available!) so who will move in will largely be determined by the size of their wallet.

Dutch architect Adriaan Geuze has said that what makes old industrial buildings exciting is the sense of freedom, even rebellion that overcomes the new inhabitants. „Most likely the buildings will become better, if they are not planned for a certain function, if the building and the function must adjust to one another,“ he says. It seems that one of the most attractive examples of such mutual re-discovery and co-existence has now been born in Tallinn.

A10, Sa., 2007.03.31

31. März 2007 Triin Ojari



verknüpfte Bauwerke
Fahle House

Cathedral choir school

Not spectacular, but certainly unconventional: architects no w here liven up a narrow plot.

Churches are becoming increasingly important as cultural centres, especially with respect to musical education where state schools fail to perform this function. In Stuttgart, a Catholic parish has now built a choir school where non-church choirs and vocal ensembles may also go to practice. In addition, the young choristers will receive educational and leisure supervision in the new building. It is good to find that, after a slump in interest, young people are rediscovering the joys of singing.

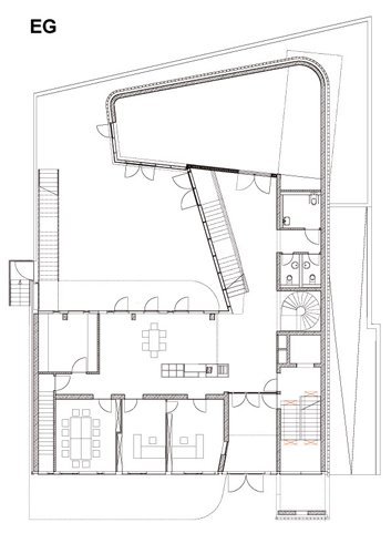
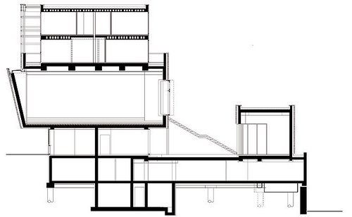
The location is central, on a sloping site typical of Stuttgart. The plot, on a slightly inclined street, is surrounded by five- and six-storey buildings, some dating from the turn of the last century. The direct proximity of post-war developments has given the new choir school a harmonizing function. The street features a relatively consistent use of brickwork and natural stone – and this material theme was taken up by the young architects no w here in their design. Instead of a hierarchy of front, side and rear views, they chose to present the building as a sculptural volume, but without overwhelming the rest of the street. The foyer, large rehearsal hall, small practice rooms, library and even a small number of apartments are clad in a skin of bricks whose non-load-bearing quality is highlighted by the architects in the curved façade. The tone of the bricks from East Frisia is an excellent match with the surroundings, and mortar of a similar pale shade was used. Ten per cent of the bricks have been laid with their darker, reverse side outwards, enlivening the large surface. In places where daylight is intended to enter the building over more than one storey, the facade is curved, breached or folded. Behind the horizontal bands of brick in the upper floors lie the covered walkways giving access to the apartments. In addition, a variety of materials – wood, steel, stucco, fair-faced concrete – ensures that the brickwork does not become tedious.

A dominant theme of Germany’s architectural contribution to the recent Venice Biennale played a prominent role here too: German planning law with its guidelines, prescriptions and other instruments of constraint. In addition, neighbours insisted that no sound from inside the choir school should be audible outside.

Inside, the atmosphere is cheerful and lively, animated with red, soft yellow and pale green. Robust bamboo, which is harder than oak, gives the practice rooms a pleasant acoustic. Unfortunately, planning regulations decree that the large rehearsal hall, which protrudes from the front facade like a kangaroo pouch, may only be used for rehearsals and not for public concerts. This is a great shame, since its shape, acoustics and lighting leave nothing to be desired. Although the narrow plot rules out any sweeping gestures, the two-storey foyer and the arrangement of the practice rooms around a well-lit courtyard cleverly counteract any sense of confinement. To the side lie the separate stairwell for the apartments, a lift and a suspended spiral staircase for internal school use.

The cathedral choir school is the architect’s first commission, obtained on the basis of a competition. Rem Koolhaas and some other „established“ architects recently attacked the absurdity of some competition procedures, but the baby should not be thrown out with bath water: in this case, the competition procedure gave young architects an opportunity which they promptly seized. Once again, the church demonstrated its importance as a cultural driving force in the architectural sector. For new buildings, it regularly organizes competitions, which – like museum commissions – then send out important signals for current and future architecture.

A10, Sa., 2007.03.31

31. März 2007 Ursula Baus



verknüpfte Bauwerke
Domsingschule Stuttgart

4 | 3 | 2 | 1