Details

Adresse
Landhausstraße 29, 70190 Stuttgart, Deutschland
Bauherrschaft
Katholische Gesamt - Kirchengemeinde Stuttgart
Tragwerksplanung
Furche und Zimmermann
Kunst am Bau
Bernhard Huber
Weitere Konsulent:innen
Hls-Planer: PIV Planungsingenieure Versorgungstechnik, Schorndorf
Elektro-Planer: Planungsbüro TGF, Jettingen
Akustik und Bauphysik: Prof. Hanno Ertel, Stuttgart
Lichtplanung: Altena Lichtplanung, Weinstadt
Geologie: Henke und Partner, Stuttgart
Vermessung: Vermessungsbüro Hils, Stuttgart
Brandschutz: Ingenieurbüro für Brandschutz und Sicherheit Düh, Wien
Funktion
Bildung
Wettbewerb
2001
Planung
2001 - 2005
Ausführung
2005 - 2006
Grundstücksfläche
660 m²
Bruttogeschossfläche
2.250 m²
Bebaute Fläche
425 m²
Umbauter Raum
8.000 m³
Baukosten
4,3 Mio EUR

Preise und Auszeichnungen

Anerkennung beim Landeswettbewerb Zukunftsfähige Stadterneuerung: Bauherrenpreis 2000-2006

Publikationen

Baunetz: Infoline Akustik vom 28.03.2007
Esslinger Zeitung 09.03.2007
Esslinger Zeitung/Plochinger Zeitung, 02.03.2007
Deutsches Architektenblatt, 01.03.2007
germanarchitects.com - Bau der Woche 14.02.2007
Baunetz newsletter, 08.01.2007
Stuttgarter Zeitung, 08.01.2007
Stuttgarter Zeitung, 21.01.2006
Baunetz newsletter, 20.01.2006: Lehrgehäuse
Baunetz newsletter, 06.04.2005: Schützende Membran
Arch 166, 2003 - Off-Architektur 1
Wettbewerbe aktuell: Domsingschule Stuttgart; S. 99-101

In nextroom dokumentiert:
Birgit Schmolke: Bühnenbauten, Handbuch und Planungshilfe, DOM publishers, Berlin 2011.
db deutsche bauzeitung, Junge Architekten, Konradin Medien GmbH, Leinfelden-Echterdingen 2007.
A10, new European architecture #14, A10 Media BV, Amsterdam 2007.

Presseschau

31. März 2007Ursula Baus
A10

Cathedral choir school

Not spectacular, but certainly unconventional: architects no w here liven up a narrow plot.

Not spectacular, but certainly unconventional: architects no w here liven up a narrow plot.

Churches are becoming increasingly important as cultural centres, especially with respect to musical education where state schools fail to perform this function. In Stuttgart, a Catholic parish has now built a choir school where non-church choirs and vocal ensembles may also go to practice. In addition, the young choristers will receive educational and leisure supervision in the new building. It is good to find that, after a slump in interest, young people are rediscovering the joys of singing.

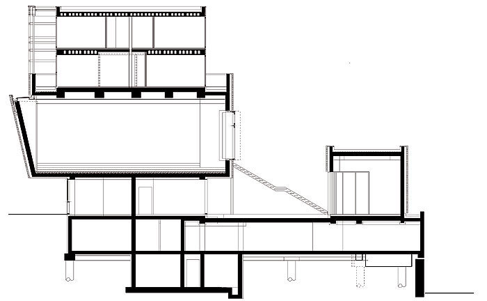
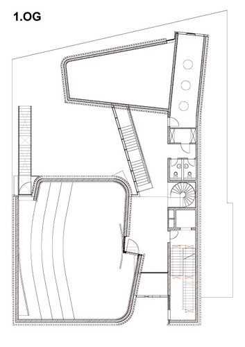
The location is central, on a sloping site typical of Stuttgart. The plot, on a slightly inclined street, is surrounded by five- and six-storey buildings, some dating from the turn of the last century. The direct proximity of post-war developments has given the new choir school a harmonizing function. The street features a relatively consistent use of brickwork and natural stone – and this material theme was taken up by the young architects no w here in their design. Instead of a hierarchy of front, side and rear views, they chose to present the building as a sculptural volume, but without overwhelming the rest of the street. The foyer, large rehearsal hall, small practice rooms, library and even a small number of apartments are clad in a skin of bricks whose non-load-bearing quality is highlighted by the architects in the curved façade. The tone of the bricks from East Frisia is an excellent match with the surroundings, and mortar of a similar pale shade was used. Ten per cent of the bricks have been laid with their darker, reverse side outwards, enlivening the large surface. In places where daylight is intended to enter the building over more than one storey, the facade is curved, breached or folded. Behind the horizontal bands of brick in the upper floors lie the covered walkways giving access to the apartments. In addition, a variety of materials – wood, steel, stucco, fair-faced concrete – ensures that the brickwork does not become tedious.

A dominant theme of Germany’s architectural contribution to the recent Venice Biennale played a prominent role here too: German planning law with its guidelines, prescriptions and other instruments of constraint. In addition, neighbours insisted that no sound from inside the choir school should be audible outside.

Inside, the atmosphere is cheerful and lively, animated with red, soft yellow and pale green. Robust bamboo, which is harder than oak, gives the practice rooms a pleasant acoustic. Unfortunately, planning regulations decree that the large rehearsal hall, which protrudes from the front facade like a kangaroo pouch, may only be used for rehearsals and not for public concerts. This is a great shame, since its shape, acoustics and lighting leave nothing to be desired. Although the narrow plot rules out any sweeping gestures, the two-storey foyer and the arrangement of the practice rooms around a well-lit courtyard cleverly counteract any sense of confinement. To the side lie the separate stairwell for the apartments, a lift and a suspended spiral staircase for internal school use.

The cathedral choir school is the architect’s first commission, obtained on the basis of a competition. Rem Koolhaas and some other „established“ architects recently attacked the absurdity of some competition procedures, but the baby should not be thrown out with bath water: in this case, the competition procedure gave young architects an opportunity which they promptly seized. Once again, the church demonstrated its importance as a cultural driving force in the architectural sector. For new buildings, it regularly organizes competitions, which – like museum commissions – then send out important signals for current and future architecture.



verknüpfte Zeitschriften
A10 #14

9 | 8 | 7 | 5 | 6 | 4 | 3 | 2 | 1