19. Juli 2010 - HDA
(SUBTITLE) Verbindungsgang Rosenberggürtel
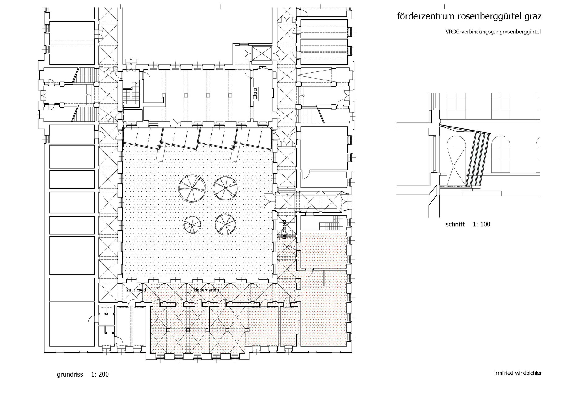
Von einem Kindergartenprojekt im Förderzentrum des Landes Steiermark, einem Schulgebäude aus der Gründerzeit, blieb lediglich ein Verbindungsgang in einem der Innenhöfe übrig.Dieser dient als kurze Verbindung zwischen den Eingangs- und Garderobenbereichen und ermöglicht auch den Zugang in den Innenhof. Der Gang wurde als verzinkte Stahlskelettkonstruktion ausgeführt und verglast. Dadurch wirkt er leicht und transparent, trotzdem halten die Oberflächen auch eine rauere Behandlung durch die Schüler aus. Durch die verzahnt geführten geneigten Aussenwände hat der Gang je nach Gehrichtung sehr unterschiedliche Raumwirkungen, in der einen Richtung geschlossen, in der anderen offen. (Text: Architekt)