13. Oktober 2010 - HDA
Die Räume am Dachboden und im 2. OG eines Webereigebäudes der ehemaligen Schafwollwarenfabrik nahe dem Lendplatz versprühten zwar Industrieromantik, waren ansonsten aber wenig einladend: Strom, Wasser, Heizung und Dämmung waren nicht vorhanden, die Fenster großteils zerstört. Nutzbarmachung ohne die Seele des Ortes zu zerstören war die Devise des sensiblen Umbaus von Architekt Siegfried Frank.
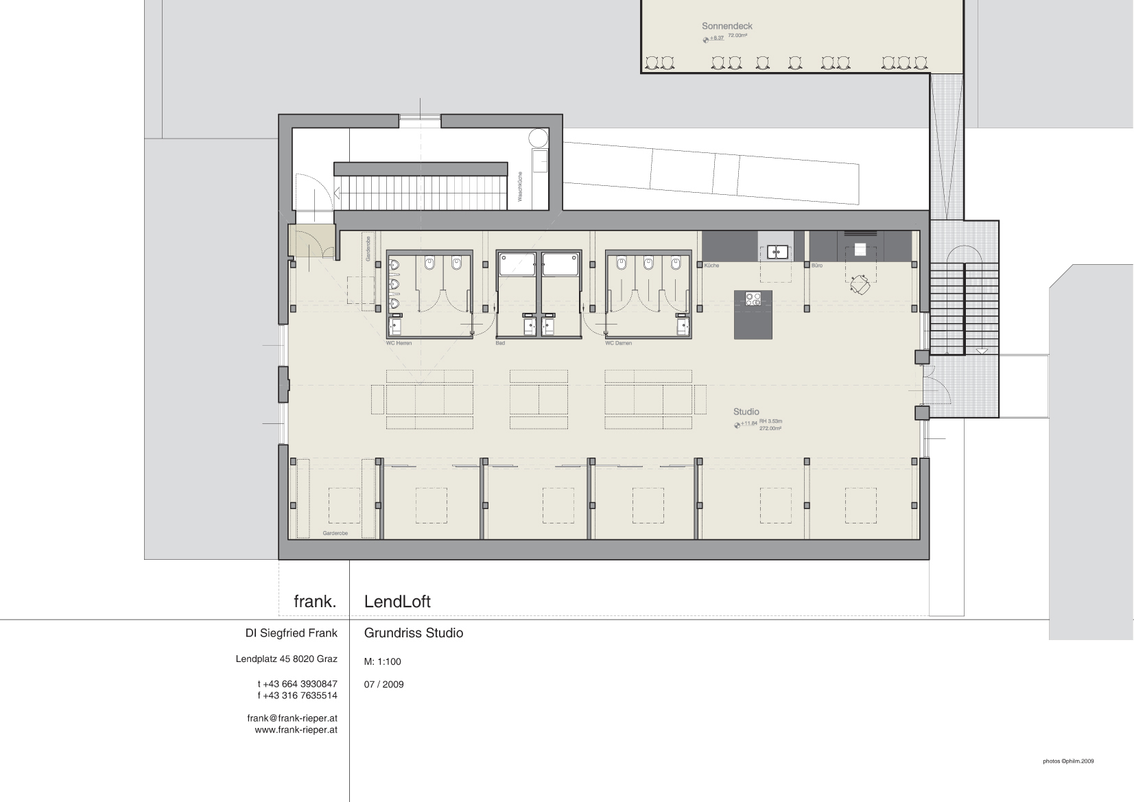
Eine neue außenliegende Stahltreppe führt, einen der charakteristischen alten Übergänge zwischen den Gebäuden des Areals querend, bis ins Dachgeschoß in den kleineren der beiden Veranstaltungsräume, der auch die gesamte Infrastruktur beinhaltet. Das Dachtragwerk wurde, ebenso wie der alte Holzboden, erhalten und strukturiert den Raum um den zentralen Mittelbereich: Büro, Küche und „Wohnzimmer“, einige Nischen, die auch als Zimmer verwendet werden können, und drei weiße Kuben, die die Sanitärräume aufnehmen. Der Lehmputz über der ökologischen Dämmung garantiert ein angenehmes Raumklima, große Dachfenster lassen Tageslicht in den früher dunklen Dachboden fluten. Das bestehende Stiegenhaus, in das ein Lagerraum gehängt wurde, führt ins 2.OG hinunter. Fünf alte Eisensäulen verleihen dem 280 m² großen Raum einen industriellen Charakter, in die Decke integrierte, vom Dachgeschoß aus installierte, Leuchten lassen ihn in verschiedenste Lichtstimmungen tauchen. Der Schwingboden macht das Loft als Tanzsaal nutzbar und neue, handgefertigte Kastenfenster, die von der engen Zusammenarbeit mit den Handwerkern zeugen, lassen in die Baumkronen des Gartens blicken. Auf dem Flachdach des Nebengebäudes konnte ein Sonnendeck errichtet werden, das einen weiten Blick auf die heterogene Bebauung des Viertels sowie auf den Schloßberg gewährt. Dezente Details, wie die emaillierten Blechleuchten, die sich im Wind wiegen, komplettieren den behutsamen Umgang mit dem industriellen Erbe des Quartiers. (Text: Martin Grabner)