19. März 2007 - Architekturarchiv Slowakei
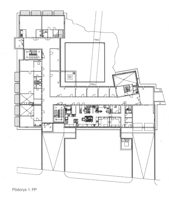
Combination of materials and colours and the formal austerity create serene atmosphere. Large glassed facade surfaces allow views to nature and adjacent city. Landscape intervention around th ebuilding offers connection with water and maximal continuity of interior with exterior. The interior equipment and furniture is functional and minimalist in character, while the detailing of its wooden elements provide feeling of cosiness.
The quality of this architecture carefully located in its environment was rewarded the Dušan Jurkovič Prize 2005 and nomination for ARCH magazine Prize 2006. (text: Peter Szalay)