18. Mai 2011 - Architekturarchiv Ungarn
Die Differenzierung der Baukörper zeigt sich auch in unterschiedlichen Fassadensystemen:
• Büroturmverglasung (17.000 m²) als kostengünstige Elementfassade mit Deckschalen
• Eingangshalle (1.400 m²) als Akzent mit Vario-Verglasung ohne Deckschalen
• Stirnfassade der Eingangshalle als Nurglasfassade mit hängenden Glasschwertern als Windaussteifung für höchste Transparenz und Offenheit.
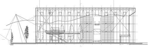
Die Empfangsgeste des konischen Portals wird durch die Nurglaskonstruktion oberhalb der Eingangstrommel zusätzlich betont. Der Grünton der Eingangshallen-Verglasung unterstreicht den Wintergarteneffekt und unterscheidet sich bewusst von der neutralen, blau-grauen Bürohausfassade.
In der Innenraumgestaltung finden sich verschiedene Elemente als Referenz an den Gebäudenamen und nahen Fluss, welcher aber aus der Halle nicht gesehen werden kann (Duna- ungarisch: Donau). Die abgehängte Aluwelle mit den Zusatzfunktionen Sonnenschutz , Reflektor für die Effektbeleuchtung und Schallzerstreuung. Der grüne Natursteinboden und die in der Halle schwebende, schiffsartige Clubinsel mit Café-Betrieb. Der Grünton der Verglasung unterscheidet sich von der neutralen Bürohausfassade. Der hintere Teil dient auch als Wintergarten für das hauseigene Restaurant. Die fahrbare Putzbrücke oberhalb der Welle kann bei Events auch zu Beleuchterzwecken eingesetzt werden. Die dynamisch veränderliche Farbmischung der Effektbeleuchtung ermöglicht abwechslungsreiche Raumstimmungen. (Text des Architekten)