Details

Adresse
Toldy Ferenc u. 9., 1015 Budapest, Ungarn
Architektur
László Földes
Mitarbeit Architektur
Tamás Mórocz
Bauherrschaft
Municipality of I. district, Budapest - Buda Castle
Landschaftsarchitektur
Égig Érő Fű Kft (Karolin Bán)
örtliche Bauaufsicht
Magyar Épületszerelő Rt
Kunst am Bau
József Nagy
Fotografie
Andrea Häider
Weitere Konsulent:innen
Structures - Gábor Becker
Mechanical engineering - András Oltvai
Electrical engineering - Andor Oláh
Civil engineering - János Bólya
Sport technology - István Mihalek
Fire safety - László Papp
Planung
1997 - 2003
Ausführung
2002 - 2004
Eröffnung
2004
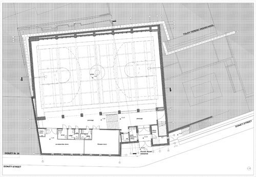
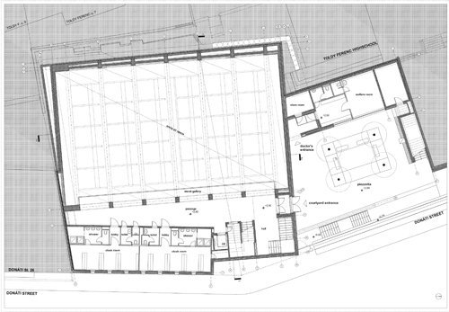
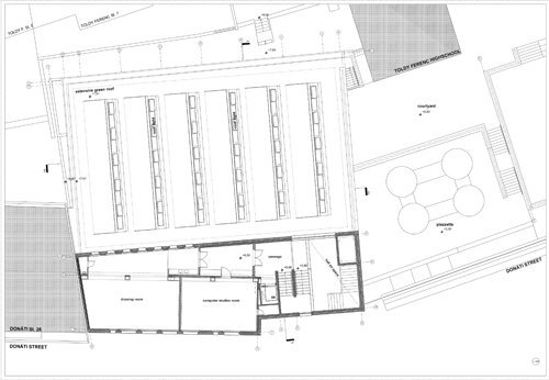
Grundstücksfläche
4.591 m²
Nutzfläche
1.350 m²
Bebaute Fläche
830 m²
Baukosten
2,5 Mio EUR

Preise und Auszeichnungen

Pro Architectura 2006

Publikationen

Brick ’06, Callwey München, p.148
Atlas 2000, Global Architecture
Emerging Identities - East! Berlin exhibition catalogue
9 | 8 | 7 | 5 | 6 | 4 | 3 | 2 | 1