09. November 2008 - Architekturarchiv Ungarn
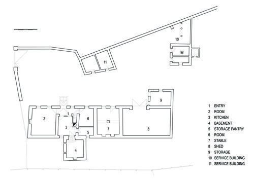
This rural, tile-roofed, stone-walled adobe house was reconstructed avoiding new functions, structures and materials, alien to the original use of the house. Newer urban patterns, appearing in the region mainly due to changing ownership, were considered as potential threats in this context.
Next to the existing reconstructed house a perpendicular extension was built on the area where ome old sheds used to stand. This extension houses the sun-room/kitchen and was designed to meet modern day standards using the most contemporary technologies, materials and construction methods. The new does not want to transform the old and did not come into existence to replace it, but rather to complete it.
Synthesis alone was not an aim of the project, because it resists both the old and the new. On the contrary, the old and the new languages are brought into harmony and co-existence by giving them each their own space and allowing them to express themselves fully, side by side. István Murka