18. Februar 2007 - Architekturarchiv Slowenien
(TITLE) Mixed use compleks on Železna cesta in Ljubljana (Slovenia)
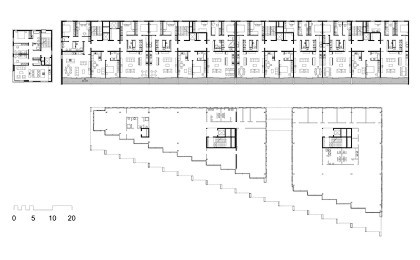
Mixed use complex along Železna cesta in Ljubljana is closing the west end of Zupančičeva jama next to the future North Park at Navje. It consists of three seperate buildings: the main apartment building, the tower and the lower office-retail building.The main apartment building has a high base on which two horizontal volumes are positioned, partly cantilivered. The apartments along the whole west fasade are opened towards the park and the view on Ljubljana with the Castle through wide loggias. Loggias have full height sliding shutters which are closed according to individual needs and wishes, daytime or weather, creating on the main fasade an ever new composition of full-empty fields. Wooden lattice of the shutters, on the outside covered with aluminum for better weather resistance, create together with wooden wall coverings of the loggias a pleasant atmosphere of a gazebo.
Penthouses with large panoramic windows and roof terraces are designed as smaller separated volumes of different heights. The east fasade with its simpler design and materials reflects the residential character of the building block interior. Its large surface is broken down by randomly attached volumes of closed loggias and balconies as well as with irregular composition of colours.
The tower on the northern end of the main apartment building is residential and complements the the main square of Zupančičeva jama, where modern interpretations of a town gate, loggia and a fountain are already located.
The lower nonresidential building fills up the conical space between the building line of Zupančičeva jama, set perpendicular to the railroad and the promenade along Železna cesta, which is, based on the idea of famous town planner Max Fabiani, directed towards the Castle, visualy connecting the area north of the railroad with the city centre. The nonresidential building draws attention to this important direction by its architecturally stressed arcades in a large, city scale. As an accent a red loggia is added to the regular rhytm of the arcades on the northern end.